札幌市豊平区福住のテナント募集:福住駅から徒歩3分、札幌ドームまで徒歩5分

Information

¥310,510

札幌市豊平区福住

¥15,000 坪単価

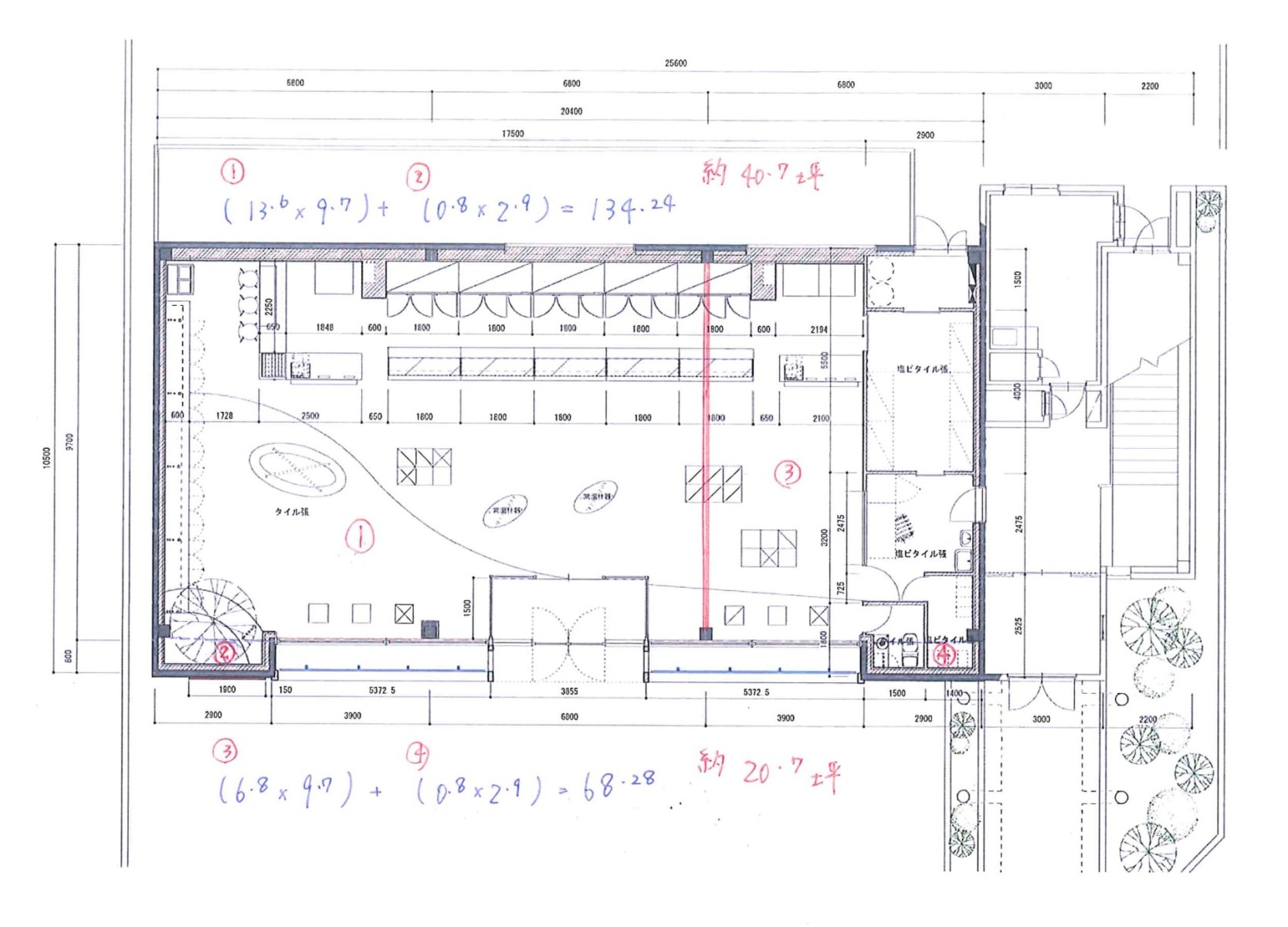
68.28m2 (20.7 坪)

View Block Map

View Block Map

View Document

福住共進ビル

Picture 2 of 13

赤線より右側の20.7坪赤線より右側の20.7坪The area to the right of the red line is 20.7 tsubo.

地下鉄東豊線福住駅から徒歩3分。札幌ドームまで徒歩5分。
札幌市内でも最大級の車の通行量を誇る36号線沿いに面した1階部分。
2階、3階部分は大手の塾が長年使用して頂いており、品位の良いビルです。
デザイナーによる建築は周囲の建物と一線を画し、国道からとても目立ちます。

前面には3台分の駐車場が確保されています。
必要であれば裏手にも駐車場があります。
非常にプロモーション効果の高い希少なテナントになります。
当ビルのテナントの稼働率は20年以上100%。

20.7坪 310,500円(税別)

看板使用料 30,000円(税別)(※応相談)
駐車場 18,000円/1台(税別)
※駐車場の台数はお選びいただけます。ビル裏手に駐車場有。
敷金 6ヶ月分
共益費、管理費 なし。SRC構造3階建て。
1992年7月新築
床は底上げしてレベルをとってあります。

直接お申し込みの場合は、仲介手数料無料。

飲食店不可、不動産仲介の広告料は一ヶ月。

立地

東豊線福住駅 徒歩約3分
札幌ドーム  徒歩約5分

Information

¥310,510

札幌市豊平区福住

¥15,000 坪単価

68.28m2 (20.7 坪)

測量図を見る

測量図を見る

販売資料を見る

よく似た物件

東山ギャラリーハウス-抜群の立地の投資物件

¥180,000,000
ニセコ町東山
土地1652.94㎡ 建物面積391.51㎡m2 (土地500.01坪 建物積118.43坪 坪)